灰色極簡 相當經典
作者:admin 來源:互聯網 發布時間: 2021/11/27 14:02:00 瀏覽:
整個空間采用了高級灰為主色調,讓整個空間的質感有所上升,同時木質材質的加入又讓整個空間具有了生活氣息。

整個空間采用了高級灰為主色調,讓整個空間的質感有所上升,同時木質材質的加入又讓整個空間具有了生活氣息。

灰色的布藝沙發奠定了整個空間的色調,沙發下面的復古花紋又突出了整個空間的復古氣息,原木材質的書架在客廳當中進行簡單的搭配,又讓整個空間的材質變得十分細膩。

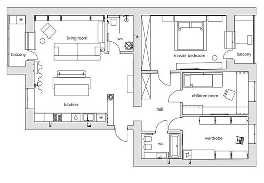
廚房位于客廳的后方,黑白色的臺式中島雙層設計,上方的白色吊燈又突出了整個空間的藝術氛圍,雅黑色的櫥柜在空間中進行相互融合,讓整個空間的層次氛圍越來越豐富。

整個臥室依舊延續簡潔的設計風格,黑白灰搭配也是整個空間的主色調,低飽和度的橘色調讓整個空間變得更加活潑。

橙色是兒童房的主色調,讓整個空間變得更加輕松活潑,大量的兒童畫也突出了空間當中的童趣。

衛生間當中疊加的眼睛突出了整個空間的藝術氣息,洗手臺大理石和原木的相互碰撞,激發了整個空間的設計亮點。

設計師注重空間舒適性和功能性,而且一直以顧客的要求為主,并且認為越簡單的事情,越困難的設計。
相關閱讀
-
2021/12/27
-
2021/12/22
-
2021/12/16
品牌資訊MORE
- 愛華仕斬獲“2021年度中國廚衛行業年度智能
- 回首2021,迎戰2022 彩虹線開啟新征程!
- 福臨板材|福滿2021,圓夢2022
- 美特照明:2022年照明新趨勢,經銷商如何做大
- 會自己“洗澡”的集成灶,帥康自動清洗集成灶
- 帶你設計一款功能多變,簡單實用的休閑露臺陽
- 世紀豪門吊頂:破防了!原來顏值+實力=H20
- 裝修木門選的好,噪音統統沒煩惱
- 寒潮來了,有淋浴房洗澡更保暖舒服
- 元旦特輯:歐意電器述說生活的點滴與美好
- “中國十大品牌”獲獎名單出爐,賽戈水漆榮耀
- 2021值得消費大賞 凱迪仕智能鎖榮摘兩項桂冠
- 益恩家居:新年新氣象,愛自己從好好睡覺開始
- 元旦伊始:健康新生活,從精格管道直飲水開始
- 喜迎元旦|新年新燈飾 箔晶智能照明讓酒店暖
- 吉美幫的2021 “專精特新” 深耕屋面防水體
- Aqara攜手京東成立燈光設計聯盟 打造燈飾照
- 年底廚房煥新顏,如何選擇廚電?好太太智能來
- 全鋁家具全屋莫蘭迪色系,這款美式輕奢范贏鄰
- 順趨勢·筑鳳巢·贏未來 鳳梧居門窗2021年會隆









