適合五口之家的小宅基地設計
作者:admin 來源:互聯網 發布時間: 2021/4/29 16:36:46 瀏覽:
建筑風格時尚耐看,室內布局合理即可,不像中式合院那么講究方位布局;建材普遍,不像歐式羅馬柱需要定制運送過來,現代風建材鄉鎮建材廠就能買齊,還便宜;后續家具、裝修設計也好選擇。
農村自建房,現代風是首選。建筑風格時尚耐看,室內布局合理即可,不像中式合院那么講究方位布局;建材普遍,不像歐式羅馬柱需要定制運送過來,現代風建材鄉鎮建材廠就能買齊,還便宜;后續家具、裝修設計也好選擇。

正面圖
今天這套二層半別墅,大面積留白,簡約黑色線條勾勒輪廓,整體對比強烈;

背面圖
大面積玻璃元素運用,使得光線通透,大氣舒展。

鳥瞰圖
布局特點
入門即玄關,換好家居服就可以躺在左手邊的沙發上看劇;餐廚一體,用餐方便的同時,避免油污帶到客廳;老人房門前即公衛,起夜更安全;

一層平面圖
二層3間臥室,客臥可以改成衣帽間或書房,房子還是自己住著舒服重要,客人來了可以安排賓館;

二層平面圖
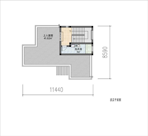
3層只有洗衣房和陽臺,喜歡可以在東南角設計一個陽光房。

三層平面圖
參數價格
占地面積:98.26平
建筑面積:203.23平
開間:11.44米
進深:8.59米
主體造價:24.39萬
相關閱讀
-
2021/12/27
-
2021/12/22
-
2021/12/16
品牌資訊MORE
- 愛華仕斬獲“2021年度中國廚衛行業年度智能
- 回首2021,迎戰2022 彩虹線開啟新征程!
- 福臨板材|福滿2021,圓夢2022
- 美特照明:2022年照明新趨勢,經銷商如何做大
- 會自己“洗澡”的集成灶,帥康自動清洗集成灶
- 帶你設計一款功能多變,簡單實用的休閑露臺陽
- 世紀豪門吊頂:破防了!原來顏值+實力=H20
- 裝修木門選的好,噪音統統沒煩惱
- 寒潮來了,有淋浴房洗澡更保暖舒服
- 元旦特輯:歐意電器述說生活的點滴與美好
- “中國十大品牌”獲獎名單出爐,賽戈水漆榮耀
- 2021值得消費大賞 凱迪仕智能鎖榮摘兩項桂冠
- 益恩家居:新年新氣象,愛自己從好好睡覺開始
- 元旦伊始:健康新生活,從精格管道直飲水開始
- 喜迎元旦|新年新燈飾 箔晶智能照明讓酒店暖
- 吉美幫的2021 “專精特新” 深耕屋面防水體
- Aqara攜手京東成立燈光設計聯盟 打造燈飾照
- 年底廚房煥新顏,如何選擇廚電?好太太智能來
- 全鋁家具全屋莫蘭迪色系,這款美式輕奢范贏鄰
- 順趨勢·筑鳳巢·贏未來 鳳梧居門窗2021年會隆









